
Konstruktiver Ingenieur
Projektplanung und Konzeptentwicklung
Eine präzise Tragwerksplanung ist entscheidend für die Stabilität und Sicherheit eines Gebäudes. Sie umfasst die Auswahl geeigneter Materialien sowie die Berechnung von Lasten und Kräften. Besonders bei Umbauten und Neubauten sind Vorschriften und Genehmigungen zu beachten. Sorgfältige Planung minimiert Risiken und gewährleistet eine sichere, langlebige Bauausführung.


Bestandszeichnung und Plandarstellung
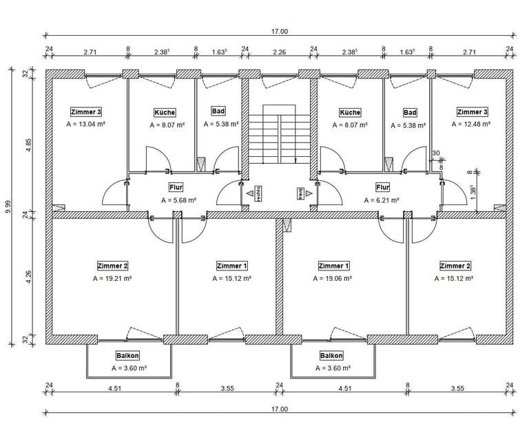
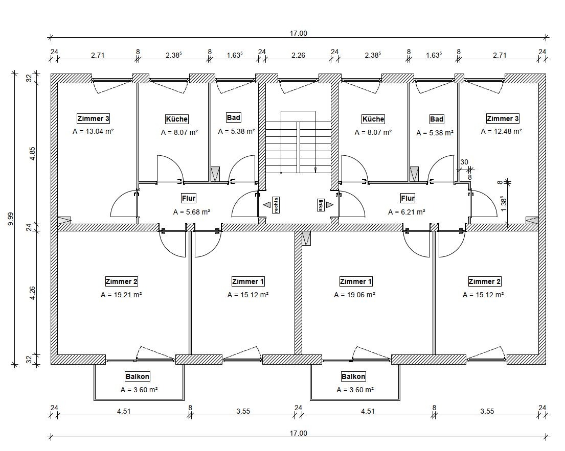
Wir erstellen präzise, maßstabsgerechte Bestandszeichnungen Ihrer Immobilie für Finanzierungen, Sanierungen und Umbauten. Unsere Pläne erfassen den aktuellen baulichen Zustand detailliert, normgerecht und nach DIN 1076. Mit moderner Messtechnik liefern wir verlässliche Unterlagen für Banken, Behörden und Bauprojekte – effizient, professionell und als sichere Grundlage für Ihre Planung jeder Art zuverlässig.
Statik und Nachweis
Bei Änderungen am Tragwerk – etwa durch Umbauten, Erweiterungen oder neue Materialien – ist eine Anpassung der Tragwerksplanung zwingend erforderlich. Veränderungen beeinflussen die Lastverteilung und Stabilität, weshalb statische Berechnungen neu durchgeführt werden müssen. Dazu gehören Tragfähigkeit, Lastabtragung und Verformungen. Der Nachweis der Standsicherheit gewährleistet Sicherheit auch unter extremen Belastungen. Qualifizierte Tragwerksplaner sorgen für normgerechte Berechnungen und die Einhaltung aller Vorschriften. Eine präzise Anpassung ist entscheidend für Sicherheit und langfristige Nutzbarkeit.
Beratung in baurechtlichen Fragen
Wir prüfen Bebauungsplan, Bebaubarkeit und Grenzabstände, bewerten Nebenanlagen und klären Genehmigungen. Bei Abweichungen unterstützen wir Befreiungsanträge nach §31 BauGB – für eine sichere, rechtskonforme und fundierte Bauplanung.


